赣州51龙凤茶楼论坛一品楼品楼论坛 ,全国聚凤阁信息论坛万花楼,东莞桑拿0757sn论坛,昆明耍耍网桑拿论坛

卓邦案例分析

您所在的位置: 首页 > 资讯频道 > 设计规范 > 体育场馆 > 体育建筑设计规范JGJ31-2003

体育建筑设计规范JGJ31-2003

来源:ZOBO卓邦 发布日期 2023-04-13 浏览:

  因篇幅有限请到资料下载   下载完整文件。

  还可以了解更多关于会议室解决方案、产品和案例 等信息。

  还可以了解更多关于体育场馆解决方案、产品和案例 等信息。

  还可以了解更多关于剧场剧院解决方案、产品和案例 等信息。

  还可以了解更多关于学校教育   解决方案、产品和案例   等信息。



1 总则

1.0.1 为保证体育建筑的设计质量,使之符合使用功能、安全、卫生、技术、经济及体育工艺等方面的基本要求,制定本规范。

1.0.2 本规范适用于供比赛和训练用的体育场、体育馆、游泳池和游泳馆的新建、改建和扩建工程设计。

1.0.3 当体育建筑有多种用途(或功能)时,其技术标准应按其主要用途确定建筑标准,其他用途则适当兼顾。

1.0.4 体育建筑设计应为运动员创造良好的比赛和训练环境,为观众创造安全和良好的视听环境,为工作人员创造方便有效的工作环境。

1.0.5 体育建筑设计应结合我国国情,根据各地区的气候和地理差异、经济和技术发展水平、民族习惯以及传统因素,因地制宜地进行设计。应遵循可持续性发展的原则。

1.0.6 体育设施,尤其是为重事所建的设施应充分考虑赛后的使用和经营,以保证大地发挥其社会效益和经济效益。

1.0.7 体育建筑等级应根据其使用要求分级,且应符合表1.0.7规定。

表1.0.7 体育建筑等级

体育建筑设计规范JGJ31-2003

1.0.8 不同等级体育建筑结构设计使用年限和耐火等级应符合表1.0.8的规定。

表1.0.8 体育建筑的结构设计使用年限和耐火等级

图片2

1.0.9 在进行正式比赛时,体育建筑设计必须符合体育主管部门颁布的各项体育竞赛规则中对建筑提出的要求。进行比赛时,同时还必须满足相关国/际体育组织的有关标准和规定。

1.0.10 体育建筑设计除应符合本规范外,尚应符合现行有关强制性标准的规定。

条文说明

1 总则

1.0.1 随着我国的改革开放,人民生活水平的提高,闲暇时间的增加,体育和休闲事业有了很大的发展,因此体育设施也进入一个新的建设高潮。体育设施的建设投资大,影响面广,并存在使用功能、安全、卫生、技术、经济等方面的问题,将直接影响设施的质量。因此提出相关要求,在体育建筑设计中应遵照执行。

1.0.2 体育设施因体育项目使用性质、使用对象的不同而有很多类型,一个规范很难全部涵盖,经与各主管方面商讨,用本条对本规范所适用的范围予以界定。

1.0.3 在我国由计划经济向社会主义市场经济转变的过程中,体育的产业化也提上议事日程,因此本条界定体育建筑多功能使用时所应遵循的设计原则。

1.0.4 本条从使用环境的角度提出体育建筑的基本目标。

1.0.5 由于我国地域辽阔,民族众多,自然气候、地理条件有很大差异,如气温和温差、地质条件和抗震、雨雪、施工技术和管理水平等,在设计中需因地制宜,不能一概而论。近年来,可持续性发展的战略原则日益为人们所认识,因此在设计中须加强这方面的应用和探索。

1.0.6 由于体育设施的特殊使用方式和对象,因此对这些设施尤其是为特殊重大比赛所建的设施,在短期赛事之后,更长期的赛后使用问题就非常突出,国/内外有许多正反方面的经验和教训,故作为独立的条文专门提出,以期引起各有关方面的重视。

1.0.7 本条是设施等级分级的基础。参考体育总局原体育设施标准管理处拟《公共体育场建设等级标准》(草案)中的规定,同时也与体育总局体育事业中期规划的建设目标分类要求大致协调。便于按不同要求区别对待,以保证其技术要求。

按照国/际田联的分类规定,将世界/杯、世界锦标赛和奥运会列为一类;洲际、地区和区域锦标赛,洲际、地区和区域杯赛以及田联小组运动会列为二类;把两个或两个以上,或几个会员联合举行的比赛,国/际田联批准的国/际邀请赛,地区协会批准的国/际邀请赛和比赛作为第三类;一个会员特别批准的,外国运动员可以参加的其他比赛和比赛作为第四类;不分类的国/内比赛作为第五类。也可以作为本条分类的对照参考。

1.0.8 本条参照《建筑结构可靠度设计统一标准》和《建筑设计防火规范》CBJ 16制订。根据体育设施的特点及我国的经济状况和技术发展,此条的耐火等级有所提高。见表1。

表1 结构设计工程寿命

图片3

1.0.9 由于体育建筑设计涉及有关体育项目竞赛规则中对于建筑设计的有关要求很多,除必要的在条文中予以强调外,一般性要求不再重复。另外有关竞赛规则和国/际单项体育组织的有关规定,会随时有所修改,故使用中需及时参照有关标准和规定。

1.0.10 体育建筑设计涉及建筑结构、防火、热工、节能、隔声、采光、照明、给排水、暖通空调、强电、弱电、环保、卫生等各种专/业,各专/业已有规范规定的除必要的予以重申外,其他不再重复。

2 术语

2.0.1 体育建筑 sports building

作为体育竞技、体育教学、体育娱乐和体育锻炼等活动之用

2.0.2 体育设施 sports facilities

作为体育竞技、体育教学、体育娱乐和体育锻炼等活动的体育建筑、场地、室外设施以及体育器材等的总称。

2.0.3 体育场 stadium

具有可供体育比赛和其他表演用的宽敞的室外场地同时为大量观众提供座席的建筑物。

2.0.4 体育馆 sports hall

配备有专门设备而供能够进行球类、室内田径、冰上运动、体操(技巧)、武术、拳击、击剑、举重、摔跤、柔道等单项或多项室内竞技比赛和训练的体育建筑。主要由比赛和练习场地、看台和辅助用房及设施组成。体育馆根据比赛场地的功能可分为综合体育馆和专项体育馆;不设观众看台及相应用房的体育馆也可称训练房。

2.0.5 游泳设施 natatorial facilities

能够进行游泳、跳水、水球和花样游泳等室内外比赛和练习的建筑和设施。室外的称作游泳池(场),室内的称作游泳馆(房)。主要由比赛池和练习池、看台、辅助用房及设施组成。

2.0.6 竞赛区 arena

由观众席围合的运动场地及其辅助区域,包括竞技场地和缓冲区。

2.0.7 跑道 track

体育场内用作径赛的场地。正式比赛的跑道为全长400m的长圆形,并对场地方位、面层、规格有严格的要求。

2.0.8 合成面层 synthetic surface

用人工合成方法制成的地面面层,在田径及一些球类项目中,要求采用符合该项目要求的合成面层。

2.0.9 足球场 football pitch

供进行足球比赛的长方形场地。

2.0.10 看台 stands

体育设施中设置有观众席位,并能为观众提供良好的观看条件和安全方便的疏散条件的结构体。

2.0.11 观众席 seats for the spectator

体育设施中供观众观看比赛的席位。

2.0.12 视线 sightline

由观众眼睛至场地设计视点的连线。

2.0.13 视点 focus point

为保证观众的观看质量,在视线设计时,根据不同竞赛项目和不同标准,保证观众看到比赛场地的全部或绝大部分时所确定的场地设计平面位置。

2.0.14 视距 viewing distance

由观众眼睛到比赛场地中被观察物体的距离。

2.0.15 视角 angle of sight

观众视线与视平线之间的夹角,视角过大将造成视觉上的透视变形。

2.0.16 固定座席 fixing seating

体育设施中固定在看台结构上的观众席位。

2.0.17 活动座席 retractable seating

具有特殊构造可将座椅收纳和移动的座席。

2.0.18 记者席 press seats

在正式比赛中,看台座位中供文字记者和广播电视记者等媒体记者使用的专用座位。

2.0.19 包厢 box

在看台观众席中,为满足部分观众的特殊要求而设置的房间。一般由观看席位和休息室等构成。

2.0.20 座宽 seats width

观众席位的宽度。

2.0.21 排深 row depth

观众席位排与排之间的距离。

2.0.22 多功能使用 multi-purpose usage

体育设施满足多种体育项目的使用或除体育项目外其他功能的使用方式。

2.0.23 训练房 practice room

供体育项目训练用的厅室。

2.0.24 热身场地 warming up area

体育竞赛时,可供运动员在正式比赛之前热身活动的区域。其规格应符合各不同项目的要求。

2.0.25 兴奋剂检测室 doping control room

在正式体育比赛中,对运动员是否服用禁物进行测试取样的专用房间。

2.0.26 游泳池 swimming pool

供游泳比赛或训练的专用水池。比赛池的规格尺寸规则上有明确要求,在满足技术条件的前提下,也可以进行其他水上项目的比赛和训练。

2.0.27 跳水池 diving pool

供跳水比赛和训练的专用水池。其规格、设施均应满足规则的严格要求。

2.0.28 训练池 training pool

供训练用的水池,其规格及设施要求需根据其训练项目确定。

2.0.29 泳道 swimming lane

游泳池比赛时,用水面浮标和池底、池壁的标志线来加以界定的比赛活动区。

2.0.30 出发台 starting block

游泳池出发端的专用设施,其规格等需满足规则的要求。

2.0.31 触板touch pads

正式游泳比赛时,安装在游泳池端线池壁的专用电子计时装置。

2.0.32 池壁 edge of the pool

游泳没施各种水池的垂直壁面,需根据不同项目要求设置有关标志和设施。

2.0.33 池岸 beacharea

游泳设施水池边,以及水池之间的区域。

2.0.34 跳板 diving boards

跳板项目的比赛设施,分1m和3m两种,其跳板高度指自板面至水面,材料和面层应符合规则规定。

2.0.35 跳台 diving platform

跳台项目的比赛设施,分5m、7.5m、1Om三种,跳台的设置、面层、水深、周围空间等均应满足规则的要求。

2.0.36 水下照明 underwater lighting

根据比赛项目和使用要求,安装在水池水下的照明器。

2.0.37 水下音响 underwater sound

根据比赛项目和使用要求,安装在水池水下的音响器材。

2.0.38 升降池底 adjustable floor

游泳池根据使用的不同要求通过变更池底高度调节水深的一种技术手段。

条文说明

2 术语

本章英文部分参照全国自然科学名词审定委员会公布之《建筑园林城市规划名词》(1996)以及有关资料的词条整理而成。同时也参照了国外有关出版物的相关词条,由于国/际标准中没有这方面的统一规定,各英语使用词汇也不尽相同,故英语部分仅作为推荐英文对应词。

涉及体育方面的术语很多,尤其是涉及与体育竞赛规则有关的部分,考虑到本规范的使用对象,故只列出与建筑设计有关的方面。

3 基地和总平面

3.0.1 体育建筑基地的选择,应符合城镇当地总体规划和体育设施的布局要求,讲求使用效益、经济效益、社会效益和环境效益。

3.0.2 基地选择应符合下列要求:

1 适合开展运动项目的特点和使用要求;

2 交通方便。根据体育设施规模大小,基地至少应分别有一面或二面临接城市道路。该道路应有够的通行宽度,以保证疏散和交通;

3 便于利用城市已有基础设施;

4 环境较好。与污染源、高压线路、易燃易爆物品场所之间的距离达到有关防护规定,防止洪涝、滑坡等自然灾害,并注意体育设施使用时对周围环境的影响。

3.0.3 市级体育设施用地面积不应小于表3.0.3的规定。

表3.0.3 市级体育设施用地面积

图片4

3.0.4 总平面设计应符合下列要求:

1 全/面规划远、近期建设项目,一次规划、逐步实施,并为可能的改建和发展留有余地;

2 建筑布局合理,功能分区明确,交通组织顺畅,管理维修方便,并满足当地规划部门的相关规定和指标;

3 满足各运动项目的朝向、光线、风向、风速、安全、防护等要求;

4 注重环境设计,充分?;ず屠米匀坏匦魏吞烊蛔试?如水面、林木等),考虑地形和地质情况,减少建设投资。

3.0.5 出入口和内部道路应符合下列要求:

1 总出入口布置应明显,不宜少于二处,并以不同方向通向城市道路。观众出入口的有效宽度不宜小于0.15m/百人的室外安全疏散指标;

2 观众疏散道路应避免集中人流与机动车流相互干扰,其宽度不宜小于室外安全疏散指标;

3 道路应满足通行消防车的要求,净宽度不应小于3.5m,上空有障碍物或穿越建筑物时净高不应小于4m。体育建筑周围消防车道应环通;当因各种原因消防车不能按规定靠近建筑物时,应采取下列措施之一满足对火灾扑救的需要:

1) 消防车在平台下部空间靠近建筑主体;

2) 消防车直接开入建筑内部;

3) 消防车到达平台上部以接近建筑主体;

4) 平台上部设消火栓。

4 观众出入口处应留有疏散通道和集散场地,场地不得小于0.2m2/人,可充分利用道路、空地、屋顶、平台等。

3.0.6 停车场设计应符合下列要求:

1 基地内应设置各种车辆的停车场,并应符合表3.0.6的要求,其面积指标应符合当地有关主管部门规定。停车场出人口应与道路连接方便;

2 如因条件限制,停车场也可在邻近基地的地区,由当地市政部门统一设置。但部分专用停车场(贵宾、运动员、工作人员等)宜设在基地内;

表3.0.6 停车场类别

图片5体育建筑设计规范JGJ31-2003

3 承担正规或国/际比赛的体育设施,在设施附近应设有电视转播车的停放位置。

3.0.7 基地的环境设计应根据当地有关绿化指标和规定进行,并综合布置绿化、花坛、喷泉、坐凳、雕塑和小品建筑等各种景观内容。绿化与建筑物、构筑物、道路和管线之间的距离,应符合有关规定。

3.0.8 总平面设计中有关无障碍的设计应符合现行行业标准《城市道路和建筑物无障碍设计规范》JGJ 50 的有关规定。

条文说明

3 基地和总平面

3.0.1 体育事业兼有社会化、产业化、公益化等方面的特征,体育设施的布局和建设都将对城市、区域、社区乃至学校、单位等产生较大影响,与人民群众的健身休闲有密切关系,因此在布局设点时,必须十分注意本条提出的四个效益。

3.0.2 本条提示体育设施一般占地较大,除各种设施本身占地以外,还必须留出足够的安全?;た占?、集散空间、绿化空间与道路空间,按照体委和建设部1986年颁布的《城市公共体育设施用地定额指标暂行规定》中的计算方法,基地应包括体育设施用地和其他用地二部分,后者包括观众集散用地、道路用地、绿化和附属设施用地等。

3.0.3 本条根据体委和建设部在1986年颁布的《城市公共体育运动设施用地定额指标暂行规定》中有关指标摘编而成。从实际情况看,影响用地面积大小的因素很多,可参照该暂行规定的说明。普通高校体育设施的面积指标可参看1992 年建设部、计委和教委颁发的《普通高等学校建筑规划面积指标》。当前许多地方也根据当地情况制定了相应法规,如厦门市人大在2001年的《厦门市体育设施建设与?;す娑ā分屑匆笫屑豆蔡逵枋┟壳瞬坏陀?70m2。

另外本条还专门注明,在一些特殊情况下达不到相应指标下限时,应在规划和建筑手段上采用专门措施,以弥补面积指标上的不足。

3.0.4 体育中/心由于占地较大,项目内容多,使用功能复杂,因财力和其他原因限制,常常分期分阶段实施,故本条提出了总平面设计的基本原则。国/内、外一些体育中/心的用地面积参见表2。

表2 国/内外体育中/心用地比较

图片6体育建筑设计规范JGJ31-2003

3.0.5 本条规定保证基地内部的交通疏散以及与城市公共道路的联系,按体育总局拟定《公共体育场建设等级标准》(草案)中的临街面的规定,如表3所示:

表3 基地临街面

图片7体育建筑设计规范JGJ31-2003

消防管理部门提出,一些体育建筑周围常为一些地层建筑和裙房包围,给消防扑救带来了困难。故专门针对这样情况提出了相应措施作为补充。

3.0.6 停车场的设置需根据体育设施的规模、使用特点、用地位置、交通状况和比赛特点等内容确定。因我国各地公安交通管理部门对停车指标要求不尽相同,故此处不再列出。

关于电视转播车的规格,见表4的数据,供参考。

表4 电视转播车参考规格

图片8体育建筑设计规范JGJ31-2003

3.0.7 体育总局拟定《公共体育场建设等级标准》(草案)中提出基地绿化面积不宜小于25%(不包括足球场草地面积),因实际建设用地情况各不相同,且各地对绿化率计算方法也分别有所规定,故不另列出。

3.0.8 体育设施有众多人数参与,伤残人观看和参与体育活动也是其中的重要内容,同时这也体现了社会文明程度和社会对伤残人的关心,当前我国体育设施中满足《城市道路和建筑物无障碍设计规范》JGJ 50要求的体育设施还较少,故专门列出本条予以强调。

4 建筑设计通用规定

4.1 一般规定

4.1.1 体育建筑应根据所在地区、使用性质、服务对象、管理方式等合理确定建筑的等级和规模。

4.1.2 比赛建筑主要由比赛场地、训练场地、看台、各种辅助用房和设施等组成。应在根据竞赛规则和有关规定满足比赛使用的同时,兼顾训练的需要。训练建筑由运动场地和一些辅助用房及设施组成,可不设看台或仅设少量观摩席位。

4.1.3 确定建筑平台、剖面、结构选型和空间造型时,应根据建筑位置、项目特点和使用要求注意其合理性、经济性和先/进性。

4.1.4 根据比赛和训练的使用要求,应确定建筑功能分区??煞治喝?、观众区、运动员区、竞赛管理区、新闻媒体区、贵宾区、场管运营区等。应根据分区妥善安排运动场地、看台、各类用房和设施的位置,解决好各部分之间的联系和分割要求。

4.1.5 根据功能分区应合理安排各类人员出入口。比赛用建筑和设施应保证观众的安全和有序入场及疏散,应避免观众和其他人流(如运动员、贵宾等)的交叉。

4.1.6 在同一场地上应能开展不同的运动项目。内部辅助用房应有一定的适应性和灵活性,当若干体育设施相连时,应考虑设备、附属设施的综合利用。

4.1.7 应结合运动项目的特点解决朝向、光线、风向、风速等对运动员和观众的影响。

4.1.8 根据当地气候条件,应充分利用自然通风和天然采光。

4.1.9 应合理确定围护结构,采取节能、节水措施。

4.1.10 在建筑处理上应考虑身材高大运动员的使用特点;对一般群众开放时,应考虑儿童、妇女老人等不同使用对象的特殊要求。

4.1.11 应考虑残疾人参加的运动项目特点和要求,并应满足残疾观众的需求。

4.1.12 体育建筑应考虑维护管理的方便和经济性,使用中发生紧急情况和意外事件时应有安全、可靠的对策。

条文说明

4.1 一般规定

4.1.1~4.1.2 体育建筑由于所在地区、使用性质、服务对象、管理方式等因素,呈现出多种多样的型制和模式,因此必须根据本条因地制宜、因时制宜、因使用制宜,合理确定其等级和规模,并以此为基础决定其内容和房间组成。

4.1.3 由于体育建筑使用的要求及结构大跨度、大空间的特点,因此在建筑体型和结构选型上都有一定特色,但如何掌握适度,在国/内、外的体育设施建设中也有正反两面的实例。故本条提出必须因时、因地制宜,避免由于过分追求形式而影响使用或造成浪费的后果。

4.1.4~4.1.5 由于体育设施工艺复杂、使用人数多、安全要求严格,服务对象有不同类型,例如举办大型国/际比赛时就需要满足一般观众、贵宾、运动员、记者、国/际组织人员、赞助商、工作人员等不同人员的不同需求,国/内一般比赛也应将观众和其他人流分开,而平时使用时又有另外的使用方式和要求,因此本条提出了功能分区和出入口安排的要求。

4.1.6 由于体育设施承担项目和使用对象的不同,除比赛场地的灵活性外,在其内部用房的布置和使用上,应有较大的适应性和灵活性,在有关专用设备的配备上具有通用性,以利提高场地和房间的利用率,并减少不必要的浪费。

4.1.7~4.1.9 按照可持续发展的原则,充分考虑环保节能、节水的各种措施。

4.1.10~4.1.11 体育设施还必须考虑特殊使用群体的一些特殊要求,以利于他们观看、参加比赛和使用这些设施,如条文中列出的高大运动员、伤残人观众和运动员,使用设施的儿童、妇女和老人等。设施设计应符合现行行业标准《城市道路和建筑物无障碍设计规范》JGJ 50的规定。

4.1.12 本条主要涉及体育设施的维护管理和应急对策。

应急对策系指由于体育设施中进行激烈的对抗比赛、大量观众的感情宣泄,以及在使用过程中的突发事件都要求在设施的设计上、设备的安排上有安全、可靠的对策,使之能够适应紧急情况下观众的疏导、局面的控制以及对紧急事件的及时处理。

4.2 运动场地

4.2.1 运动场地包括比赛场地和练习场地,其规格和设施标准应符合各运动项目规则的有关规定;当规则对比赛场地和设施的规格尺寸有正负公差限制时,必须严格遵守。

4.2.2 运动场地界线外围必须按照规则满足缓冲距离、通行宽度及安全防护等要求。裁判和记者工作区域要求、运动场地上空净高尺寸应满足比赛和练习的要求。

4.2.3 场地设计应符合下列要求:

1 场地地面材料应满足不同比赛和训练的要求并符合规则规定;在多功能使用时,应考虑地面材料变更和铺设的可能性;

2 应满足运动项目对场地的背景、划线、颜色等方面的有关要求;

3 场地应满足不同比赛项目的照度要求;

4 应考虑场地运动器械的安装、固定、更换和搬运需求。

4.2.4 场地的对外出入口应不少于二处,其大小应满足人员出入方便、疏散安全和器材运输的要求。

4.2.5 室外场地应采取有效的排水措施,设置必要的洒水设备,并应符合本规范第10.1.5条的规定。

4.2.6 场地和周围区域的分隔应符合下列要求:

1 比赛场地与观众看台之间应有分隔和防护,保证运动员和观众的安全,避免观众对比赛场地的干扰;

2 室外练习场地外围及场地之间,应设置围网,以方便使用和管理。

4.2.7 室外运动场地布置方向(以长轴为准)应为南北向;当不能满足要求时,根据地理纬度和主导风向可略偏南北向,但不宜超过表4.2.7的规定。

表4.2.7 运动场长轴允许偏角

图片9体育建筑设计规范JGJ31-2003

条文说明

4.2 运动场地

4.2.1~4.2.2 本条规定了场地规格和设施标准的要求,其具体尺寸详见此后各章所述。另外也强调了对场地和设施规格尺寸的公差要求,因为这将直接影响到设施的等级以及所创造的成绩和记录能否为和相关国/际组织承认的问题。

不同等级的比赛对于场地的缓冲区和工作区,以及场地上空净高的要求也直接影响到设施的等级和使用质量。有关要求在此后各章有所表述。

4.2.3 本条规定对体育设施比赛场地的要求。

4.2.4 本条规定场地出入口的要求。当体育设施有多功能使用或可能举办大型庆典和活动时,更需对出人口的设施、尺寸、数量有所考虑。

4.2.5 本条指定室外场地的给排水要求,在本规范10.1给水排水中将有具体规定。

4.2.6 出于安全和保证比赛顺利进行的要求,本条对场地和周围区域的分隔规定了必要的措施,另国/际足联等有关组织对于场地安全问题也有专门规定,可作为参考。

4.2.7 由于地形和用地尺寸的限制,在室外场地布置时会产生一些困难,本条规定了不同纬度下场地允许的偏转范围,在执行中比赛场地应比训练场地要求更严格,同时应考虑当地的风力和风向。

4.3 看台

4.3.1 看台设计应使观众有良好的视觉条件和安全方便的疏散条件。

4.3.2 看台平面布置应根据比赛场地和运动项目,使多数席位处于视距短、方位好的位置。在正式比赛时,根据各项比赛的特殊需要应考虑划分专用座席区。

4.3.3 观众看台功能分类应符合表4.3.3的规定。

表4.3.3 观众 看台功能分类

图片10体育建筑设计规范JGJ31-2003

4.3.4 观众席位宜符合表4.3.4的规定。

表4.3.4 观众 席位

图片11体育建筑设计规范JGJ31-2003

4.3.5 观众席尺寸不应小于表4.3.5的规定。

表4.3.5 观众席小尺寸

图片12体育建筑设计规范JGJ31-2003

4.3.6 观众席纵走道之间的连续座位数目,室内每排不宜超过26个;室外每排不宜超过40个。当仅一侧有纵走道时,座位数目应减半。

4.3.7 主席台的规模宜符合表4.3.7的规定。包厢的设置和位置可根据使用情况决定,主席台和包厢宜设单独的出入口,并选择视线较佳的位置。主席台应与其休息室联系方便,并能直接通达比赛场地,与一般观众席之间宜适当分隔。

表4.3.7 主席台的 规模

图片13体育建筑设计规范JGJ31-2003

4.3.8 看台安全出口和走道应符合下列要求:

1 安全出口应均匀布置,独立的看台至少应有二个安全出口,且体育馆每个安全出口的平均疏散人数不宜超过400~700人,体育场每个安全出口的平均疏散人数不宜超过1000~2000人。

注:设计时,规模较小的设施宜采用接近下限值;规模较大的设施宜采用接近上限值;

2 观众席走道的布局应与观众席各分区容量相适应,与安全出口联系顺畅。通向安全出口的纵走道设计总宽度应与安全出口的设计总宽度相等。经过纵横走道通向安全出口的设计人流股数应与安全出口的设计通行人流股数相等;

3 安全出口和走道的有效总宽度均应按不小于表4.3.8的规定计算;

表4.3.8 疏散宽度指标

图片14体育建筑设计规范JGJ31-2003

4.每一安全出口和走道的有效宽度除应符合计算外,还应符合下列规定:

1) 安全出口宽度不应小于1.1m,同时出口宽度应为人流股数的倍数,4股和4股以下人流时每股宽按0.55m计,大于4股人流时每股宽按0.5m计;

2) 主要纵横过道不应小于1.1m(指走道两边有观众席);

3) 次要纵横过道不应小于0.9m(指走道一边有观众席);

4) 活动看台的疏散设计应与固定看台同等对待。

4.3.9 看台栏杆应符合下列要求:

1 栏杆高度不应低于0.9m,在室外看台后部危险性较大处严禁低于1.1m;

2 栏杆形式不应遮挡观众视线并保障观众安全。当设楼座时,栏杆下部实心部分不得低于0.4m;

3 横向过道两侧至少一侧应设栏杆;

4 当看台坡度较大、前后排高差超过0.5m时,其纵向过道上应加设栏杆扶手;采用无靠背座椅时不宜超过10排,超过时必须增设横向过道或横向栏杆;

5 栏杆的构造做法应经过结构计算,以确保使用安全。

4.3.10 看台应进行视线设计,视点选择应符合下列要求:

1 应根据运动项目的不同特点,使观众看到比赛场地的全部或绝大部分,且看到运动员的全身或主要部分;

2 对于综合性比赛场地,应以占用场地大的项目为基础;也可以主要项目的场地为基础,适当兼顾其他;

3 当看台内缘边线(指首排观众席)与比赛场地边线及端线(指视点轨迹线)不平行(即距离不等)时,首排计算水平视距应取小值或较小值;

4 座席俯视角宜控制在28°~30°范围内;

5 看台视点位置应符合表4.3.10的规定。

表4.3.10 看台 视点位置

图片15体育建筑设计规范JGJ31-2003
图片16体育建筑设计规范JGJ31-2003

4.3.11.看台各排地面升高应符合下列要求:

1.视线升高差(C值)应保证后排观众的视线不被前排观众遮挡,每排C值不应小于0.06m;

2.在技术、经济合理的情况下,视点位置及C值等可采用较高的标准,每排C值宜选用0.12m;

4.3.12 室外看台上空的罩棚设计应符合下列要求:

1 罩棚的大小(覆盖观众看台的面积)可根据设施等级和使用要求等多种因素确定,主席台(贵宾席)、评论员和记者席等宜全部覆盖;

2 应合理确定罩棚的造型和结构型式,并防止或减少罩棚结构和支柱对观众观看比赛场地和大屏幕的影响;

3 当罩棚设检修天桥时,应有高度不低于1.05m的防护栏杆。

条文说明

4.3 看台

4.3.1 本条说明观众看台所应满足的基本要求,视觉条件指通视无遮挡,观察对象分辨清楚,不变形失真等,疏散条件指观众能在规定的时间内安全、顺畅到达安全区域。

4.3.2 不同的竞赛项目对视距和看台方位有不同要求,所以多功能使用的设施需要满足特定项目的视觉质量,又应有一定的弹性和兼容性,以田径场和足球场为例,一般从足球比赛的视觉质量来作为评定标准,经研究理想的位置是由足球场4个角以150m为半径划圆所形成的中/心区域(接近以场地中/心半径90m的正圆形)大视距为190m。

4.3.3 本条说明对不同等级的体育设施中,看台的功能分类及设定要求,其数目及是否增设应视比赛及媒体要求及体育设施的使用特点而决定。

4.3.4 本条规定各种等级体育设施观众席位的建议标准,其造型及用材应根据适用、美观和经济可能决定。

4.3.5 本条提出各种观众席的小尺寸要求,但在应用中需根据设施级别、设施标准等因素综合确定。

4.3.6 本条主要保证观众使用方便及安全疏散对观众席的连续座位数目所提出的较高数字规定,并与《建筑设计防火规范》的要求相一致。

4.3.7 对于主席台的要求在国外体育设施处理很不相同。国外对此处理比较一般,甚至有的不专门设置,国/内则比较重视,尤其是在有重要比赛和活动时,主席台的设置、数量、安全等因素显得尤为突出,但在平时常被闲置,以致看台视觉质量好的区域使用率不高,因此需根据设施的特点、级别等因素决定其数量及使用方式,表5是国/内一些设施的主席台数量。

表5 国/内一些设施主席台数量(观众总数/主席台座位数)

图片17体育建筑设计规范JGJ31-2003

4.3.8 在制订本条文时,根据消防主管部门意见要求应与《建筑设计防火规范》GBJ 16-87 一致,故在条文说明中,将该规范的条文说明全文转录于后,以利于使用。另外参照制订了室外看台的安全疏散宽度要求。

《建筑设计防火规范》第5.3.5条说明:

这是一条专门对体育馆观众厅安全出口数目提出的规定要求。对于体育馆观众厅每个安全出口的平均疏散人数提出不宜超过400~700人这一规定要求,现作如下说明:

1 一、二级耐火等级的体育馆出观众厅的控制疏散时间,是根据容量规模的不同按3~4min考虑的,这主要是以国/内一部分已建成的体育馆调查资料为依据的。如表6。

表6 部分体育馆 观众厅疏散时间

图片18体育建筑设计规范JGJ31-2003

另据对部分体育馆的实测结果是:2000~5000座的观众厅其平均疏散时间为3.17min;5000~20000座的观众厅其平均疏散时间为4min。所以这次修订规范时,决定将一、二级耐火等级体育馆出观众厅的控制疏散时间定为3~4min,作为安全疏散设计的一个基本依据。

2 因为体育馆观众厅容纳人数的规模变化幅度是比较大的,由三、四千人到一、两万人,所以观众厅每个安全出口平均担负的疏散人数也相应地有个变化的幅度,而这个变化又是和观众厅安全出口的设计宽度密切相关的。目前我国部分城市已建成的体育馆观众厅安全出口的设计情况如表7。

表7 体育馆 观众厅安全出口的设计 情况

图片19体育建筑设计规范JGJ31-2003

从表7来看,体育馆观众厅安全出口的平均宽度小约为1.91m;大约为2.75m。根据这样一种宽度和规定出观众厅的控制疏散时间所概算出来的每个安全出口的平均疏散人数分别为:(1.91/0.55)×37×3=385人和(2.75/0.55)×37×4=740人。所以这次修订规范时,决定将一、二级耐火等级体育馆观众厅安全出口平均疏散的人数定为400~700人。在具体工程的疏散设计中,设计人员可以按照上述计算的方法,根据不同的容量规模,合理地确定观众厅安全出口的数目、宽度,以满足规定的控制疏散时间的要求。如一座容量规模为8600人的一、二级耐火等级的体育馆,如果观众厅的安全出口设计是14个,则每个出口的平均疏散人数为8600/14=614人,假如每个出口的宽度定为2.20m(即四股人流),则每个安全出口需要的疏散时间为614/(4×37)=4.15min,超过3.5min,不符合规范要求。因此应考虑增加安全出口的数目或加大安全出口的宽度。如果采取增加出口的数目的办法,将安全出口数目增加到18个,则每个安全出口的平均疏散人数为8600/18=478人,每个安全出口需要的疏散时间则缩短为478/(4×37)=3.22min,不超过3.5min是符合规范要求的了。又如,容量规模为20000人的一座一、二级耐火等级的体育馆,如果观众厅的安全出口数目设计为30个,则每个安全出口的平均疏散人数为20000/30=667 人,如每个出口的宽度定为2.20m,则每个出口需要的疏散时间为667/(4×37)=4.50min,超过了4min,不符合规范要求。如把每个出口的宽度加大为2.75m(即五股人流),则每个安全出口的疏散时间为667/(5×37)=3.60min,小于4min是符合规范要求的了。

3 体育馆的疏散设计中,要注意将观众厅安全出口的数目与观众席位的连续排数和每排的连续座位数联系起来加以综合考虑。在这方面原规范规定中是有所要求的,但是没有能够把两者之间的关系串通在一起,这样设计往往使人容易知其然而不知其所以然,在设计中就难免出现顾此失彼的现象。如图1所示一个观众席位区,观众通过两侧的两个出口进行疏散,其间共有可供四股人流通行的疏散走道,若规定出观众厅的控制疏散时间为3.5min,则该席位区多容纳的观众席位数为4× 37×3.5=518人。在这种情况下,安全出口的宽度就不应小于2.20m;而观众席位区的连续排数如定为20排,则每一排的连续座位就不宜超过518/20=26个。如果一定要增加连续座位数,就必须相应加大疏散走道和安全出口的宽度,否则就会违反“来去相等”的设计原则了。

图片20体育建筑设计规范JGJ31-2003

图1 座位区示意图

体育场的安全出口数目和每个安全出口平均疏散人数提出不宜超过1000~2000人,这一规定要求是根据体育场的不同容量按6~8min作为安全疏散设计的基本依据,这也是以国/内一部分体育场的资料为依据的,如表8。

表8 部分 体育场观众疏散时间

图片21体育建筑设计规范JGJ31-2003

由于体育场规模相差较多,每个安全出口平均负担的人数也有一个幅度,表9为我国部分体育场安全出口数目和每个安全出口的平均人数,由于体育场体形及分区的不同,看台可能不一致,出口宽度一般小为4股人流,大多为6股人流,由此按控制疏散时间6~8min计算出每个安全出口的平均疏散人数分别为:(2.4/0.55)×40×6=1046和(3.3/0.55)×40×8=1920,由此将体育场安全出口平均疏散的人数定为1000~2000人。

表9 体育场 安全出口和平均疏散人数

图片22体育建筑设计规范JGJ31-2003
图片23体育建筑设计规范JGJ31-2003

《建筑设计防火规范》第5.3.11条说明:

这一条是专门对体育馆建筑安全疏散设计提出来的宽度指标要求。

1 在这一条中将体育馆观众厅容量规模的低限数定为3000人。其理由主要有以下两点:

1) 根据调查了解,国/内各大中城市早些时候建的或近年来新建的体育馆,其容量规模多在3000人以上,甚至有些大城市中的区段体育馆、大型企业的体育馆也都在3000人以上,如上海市的静安馆(3200人)、卢湾馆(3200人)、辽阳石油化工厂总厂体育馆(4000人)等。

2) 在这次修改中决定把剧院、电影院的观众厅与体育馆的观众厅在疏散宽度指标上分别规定的一个重要原因,就是考虑到两者之间在容量规模和室内空间方面的差异,所以在规定容量规模的适用范围时,理应拉开距离防止交叉现象,以免给设计人员带来无所适从的难处。

2 将体育馆观众厅容量规模的较高限数由原规范规定的6000人扩大到了20000人,这主要基于以下几个原因:

1) 国/内各大、中城市近年来陆续建成使用的体育馆有不少容量规模超过了6000人。如首都体育馆、上海体育馆、辽宁体育馆、南京五台山体育馆、山东体育馆、福建体育馆等,而且据了解目前尚有一些省会所在的城市,也正在进行容量规模为6000~10000人体育馆的设计与建设,如陕西西安、甘肃兰州、四川成都、湖北武汉等城市都在进行。同时今后随着形势的发展,国/内的全运会将会在更多的城市中轮流举行;更多规模更大的国/际性体育比赛(如规模盛大的亚运会等)也将在我国举行。为此,一些新的、规模较大的体育馆还是要设计和建设的,所以规范作上述改动是很有必要的。

2) 从国/内体育馆建设的实践证明:容量规模大的体育馆普遍存在着投资少、建设周期长、使用率和生产率低、经营管理费用大等问题。如上海体育馆的总投资达3200万元,建成投入使用以后,除了特别精彩的国/际比赛能满座外,一般的国/际比赛的上座率只有60%~70%。擦一次玻璃窗就要用1500元,顶棚上的108根装饰金属格片油漆一次要用11万元,经常的全年维修费则多达20万元。大型体育馆的观赏质量、观赏效果都不如中、小型体育馆,同时由于比赛场地与观众席位距离较远,运动员的情绪与观众不易发生共鸣,也影响着竞技水平的发挥。

从国外的情况来看,目前多已不倾向建设大型馆了,尤其是电视广播事业发达的。从近18~22届(1964~1980年)的五届国/际奥运会所使用的体育馆规模来看,绝大多数都是中、小型馆。只有19届奥运会建了一个容量规模超过20000人的体育馆。所以这次修改规范时将容量规模的上限定到20000人是较为合适的。

3 本条规定中的疏散宽度指标,按照观众厅容量规模的大小分为三档:3000~5000人一档;5001~10000人一档;10001~20000人一档。其每个档次中所规定的宽度指标(m/百人),是根据出观众厅的疏散时间分别控制在3min、3.5min和4min这一基本要求来确定的。这样按照计算公式:

图片24体育建筑设计规范JGJ31-2003

计算出来的一、二级耐火等级建筑观众厅中每百人所需要的疏散宽度为:

平坡地面:B1=0.55×100/3×43=0.426取0.43

B2=0.55×100/3.5×43=0.356取0.37

B3=0.55×100/4×43=0.319取0.32

阶梯地面:B1=0.55×100/3×37=0.495取0.50

B2=0.55×100/3.5×37=0.424取0.43

B3=0.55×100/4×37=0.371取0.37

4 根据规定的疏散宽度指标计算出来的安全出口总宽度,只是实际需要设计的概算宽度,在后具体确定安全出口的设计宽度时,还需要对每个安全出口进行细致的核算和必要的调整,如一座容量规模为10000人的体育馆,耐火等级为二级。按上述规定疏散宽度指标计算出来的安全出口总宽度为100×0.43=43m。在具体确定安全出口时,如果设计16个安全出口,则每个出口的平均疏散人数为625人,每个出口的平均宽度为43/16=2.68m。如果每个出口的宽度采用2.68m,那就只能通过4股人流,这样计算出来的疏散时间为:625/(4×37)=4.22min,因为大于3.5min,是不符合规范要求的,如果将每个出口的设计宽度调整为2.75m,那就能够通过5股人流了,这样计算出来的疏散时间则是:625/(5×37)=3.38min<3.5min,是符合规范要求的了。但是这样反算出来的宽度指标则是16×2.75/100=0.44m/百人,比原指标调高了2%。

5 规范表后面增加一条“注”,明确了采用指标进行计算和选定疏散宽度时的一条原则:即容量规模大的所计算出来的需要宽度,不应小于容量规模小的所计算出来的需要宽度。如果前者小于后者,应按大者数据采用。如一座容量规模为5400人的体育馆,按规定指标计算出来的疏散宽度为54×0.43=23.22m,而一座容量规模为5000人的体育馆,按规定指标计算出来的疏散宽度则为50×0.50=25m,在这种情况下就明确采用后者数据为准。

6 体育馆观众厅内纵横走道的布置是疏散设计中的一个重要内容,在工程设计中应注意以下几点:

1) 观众席位中的纵走道担负着把全部观众疏散到安全出口的重要功能,因此在观众席位中不设横走道的情况下,其通向安全出口的纵走道设计总宽度应与观众厅安全出口的设计总宽度相等。

2) 观众席位中的横走道可以起到调剂安全出口人流密度和加大出口疏散流通能力的作用,所以一般容量规模超过6000人或每个安全出口设计的通过人流股数超过四股时,宜在观众席位中设置横走道。

3) 经过观众席中的纵横走道通向安全出口的设计人流股数与安全出口设计的通行股数,应符合“来去相等”的原则。如安全出口设计的宽度为2.2m,那么经过纵、横走道通向安全出口的人流股数不宜大于4股,超过了就会造成出口处堵塞以致延误了疏散时间。反之,如果经纵横走道通向安全出口的人流股数小于安全出口的设计通行股数,则不能充分发挥安全出口的疏散作用,在一定程度上造成浪费现象。

体育场的安全疏散设计可参照上述说明办理。在本条文中体育场的容量以40000人和60000人分档。主要考虑40000人作为大中型城市来说,该容量比较合适,且满足国/际足联世界/杯足球赛预选赛的要求。而对特大城市而言,一般容量都在60000人大不超过80000人,因此据此制订了分档。而每个档次中所规定的宽度指标(m/百人)是根据国/内外体育场设计和实测时间分别控制在6min、7min、8min的要求而确定的。

4.3.9 本条从使用和安全角度对于体育设施看台的栏杆提出应注意的各点。其中涉及安全的部分需要在执行中特别注意。

4.3.10 看台视线设计标准主要取决于视点平面位置、视点距地面高度和观众席前后排视线升高差(C值)三个因素,本条规定了体育场、馆和游泳池三类建筑对典型场地的看台视线设计标准,其他运动项目的看台可参照执行。

体育场一般为田径、足球综合性场地,由于田径场地布置及运动特点比较复杂,需要对多个视点进行比较,并考虑看台设计的技术经济性,才能确定合理的视线设计标准,在实际设计工作中因为各个工程采用标准不同,对视线质量的评定也不一致。

本条对田径场视点选择的考虑如下:

1 西直道和终点线是各项径赛重要的地点,选定西直道外边线与终点线的交点作为视点位置,并以终点线附近看台为首排计算水平视距,这样对全场绝大部分观众观看环形跑道上及其内侧范围内所有田径和足球比赛基本上不会有问题。假如看台内边线平面为椭圆形(即比赛场地外轮廓),环形跑道长轴偏东布置,看台内边距跑道远近不相同,其视线质量与设计视点处比较,有的要好一点,有的要差一点,但低标准应能看到运动员胸部(距地1.2m上下)。

2 对于位于跑道外侧的田径项目来说,其场地距看台较上述计算视距较近时,有何影响应作具体分析。撑杆跳高项目,属于高空动作,任何位置都能看得到。障碍赛水池设在弯道外侧内侧均有,但使用机会很少,目前仅男子一项,影响不大。惟有跳远(含三级跳远),男女各二项,且较重要,按理论要求看到沙坑沙面,因此应适当兼顾,在条件许可时调整视点位置,按佳效果设计。但当看台首排设计标高距场地较高,看台排数多或者有楼层看台时,计算结果看台逐排升高过大,技术经济上不合理,甚至不可行,在这种情况下,可不多考虑。因为从全局来看,首先,这毕竟是个别项目,部分位置的观众受到影响;其次实际情况往往比理论计算的要好些,观众必要时会自动调整自己的姿态,采取侧身、欠身甚至站起的方式,达到观看运动员落地的一刹那;第三,设计视点距地面高度规定±0,这一标准对径赛项目来说是高标准,其中就考虑到了对跑道外侧田径项目的不利因素,已有一定程度的兼顾。

另外,冰球场地由于界墙的遮挡和影响,视点的选择有一定特殊要求,故在条文中予以说明。

4.3.11 视线升高差(C值)每排0.12m指后一排观众视线通过前一排观众头顶上空看到设计视点。C值每排0.06m,即每两排C值为0.12m,指后一排观众视线须通过前一排两位观众头间空隙和前二排观众的头顶上空才能无阻挡地看到设计视点。

当C值采用小于0.12m时,在影剧院观众座席须前后排错位设置,但对体育场馆来说一般可不考虑,因为体育比赛场地大,观众视角大,无论是错位还是不错位排列,效果基本上相同,前一排观众对后一排观众,都会有一定的视线阻挡,主要靠观众自行调整姿态解决。

另外关于视线设计有图解法、数解法(逐排推算法、直接计算法)等,此处不再详述。

4.3.12 室外看台一般设有罩棚以遮阳避雨,为观众提供较好的观看条件。国/际足联对于世界/杯足球赛观众席提出需有2/3以上座席为屋顶所覆盖,故本条对于罩棚设计的要点做出规定。

4.4 辅助用房和设施

4.4.1 辅助用房应包括观众(含贵宾、残疾人)用房、运动员用房、竞赛管理用房、新闻媒介用房、计时记分用房、广播电视用房、技术设备用房和场馆运营用房等,其功能布局应满足比赛要求,便于使用和管理,并应解决好平时与赛时的结合,具有通用性和灵活性。

4.4.2 观众用房应符合下列要求:

1 观众用房(含贵宾、残疾人)应与其看台区接近,面积应与其使用要求及使用人数相一致,并配置相应的服务设施;

2 一般观众休息区可根据场、馆性质和当地气候条件,采取位于室内、室外或室内外结合的方式;

3 贵宾休息区应与一般观众休息区分开,并设单独出入口;

4 观众用房低标准应符合表4.4.2-1的规定。

表4.4.2-1 观众用房标准

图片25体育建筑设计规范JGJ31-2003

5 应设观众使用的厕所。厕所应设前室,厕所门不得开向比赛大厅,卫生器具应符合表4.4.2-2和表4.4.2-3的规定。

表4.4.2-2 贵宾厕所厕位指标(厕位/人数)

图片26体育建筑设计规范JGJ31-2003

表4.4.2-3 观众厕所厕位指标

图片27体育建筑设计规范JGJ31-2003

6 男女厕内均应设残疾人专用便器或单独设置专用厕所。

4.4.3 运动员用房应符合下列规定:

1 运动员用房应包括运动员休息室、兴奋剂检查室、医务急救室和检录处等;

2 运动员休息室应由更衣室、休息室、厕所、盥洗室、淋浴等成套组合布置,根据需要设置按摩台等;

3 医务急救室应接近比赛场地或运动员出人口,门外应有急救车停放处;

4 检录处应位于比赛场地运动员入场口和热身场地之间;

5 运动员用房除比赛时运动员使用外,也应具有一般使用者利用的可能性;

6 运动员用房低标准应符合表4.4.3规定。

表4.4.3 运动员用房标准

图片28体育建筑设计规范JGJ31-2003

4.4.4 竞赛管理用房应符合下列要求:

1 竞赛管理用房应包括组委会、管理人员办公、会议、仲裁录放、编辑打字、复印、数据处理、竞赛指挥、裁判员休息室、颁奖准备室和赛后控制中/心等;

2 竞赛管理用房低标准应符合表4.4.4-1和表4.4.4-2的规定。

表4.4.4-1 竞赛管理用房标准(一)

wps29体育建筑设计规范JGJ31-2003

表4.4.4-2 竞赛管理用房标准(二)

wps30体育建筑设计规范JGJ31-2003

3 根据实际需要安排场馆工作人员的休息及更衣室。

4.4.5 新闻媒介用房应符合下列要求:

1 新闻媒介用房应包括新闻官员办公、记者工作用房、电传室、邮电所和无线电通讯机房等。

2 新闻媒介用房低标准应符合表4.4.5的规定。

表4.4.5 新闻媒介用房标准

wps31体育建筑设计规范JGJ31-2003

4.4.6 计时记分用房应符合下列要求:

1 计时记分用房应包括计时控制,计时与终点摄影转换, 屏幕控制室,数据处理室等;

2 计时记分牌位置应能使全场绝大部分观众看清,其尺寸及显示方式宜根据不同项目特点和使用标准确定;

3 室外计时记分装置显示面宜朝北背阳,室内馆侧墙上计时记分装置底部距地应大于2.5m,当置于赛场上空时,其位置和安放高度不应影响比赛;

4 控制室应能直视场地、裁判席和显示牌面;

5 控制室内应设升降旗的控制台;

6 计时记分用房低标准应符合表4.4.6的规定。

表4.4.6 计时记分用房标准

wps32体育建筑设计规范JGJ31-2003

4.4.7 广播电视用房应符合下列要求:

1 宜设置广播电视人员专用出入口和通道,出入口附近应能停放电视转播车,设置电视设备接线室,并提供临时电缆的铺放条件;

2 应考虑架设电视摄像机和微波天线位置;

3 广播电视用房配置标准应符合表4.4.7的规定。

4 播音室、评论员室应能直视比赛场地、主席台和显示牌等。

表4.4.7 广播电视用房标准

wps33体育建筑设计规范JGJ31-2003

4.4.8 技术设备用房应符合下列要求:

1 应包括灯光控制室,消防控制室,器材库,变配电室和其他机房等;

2 灯光控制室应能看到主席台、比赛场地和比赛场地上空的全部灯光;

3 消防控制室宜位于首层并与比赛场内外联系方便,应有直通室外的安全出口;

4 器材库和比赛、练习场地联系方便;器材应能水平或垂直运输;应有较好的通风条件;出入口大小及门的开启方向应符合器材的运输需要;

5 技术设备用房低标准应符合表4.4.8规定。

表4.4.8 技术用房配置标准

wps34体育建筑设计规范JGJ31-2003

6 当泵房、发电机房、空调机组等设备安放在场馆内时,应避免设备产生的噪声对比赛区和观众区的影响。

条文说明

4.4 辅助用房和设施

4.4.1 本条列出了体育设施辅助用房的基本内容及布置原则,在实际操作中应根据设施等级、使用目的、运营方式等不同而区别对待。

4.4.2~4.4.3 以下各条对体育设施的相关用房按不同等级提出有关指标:

1 观众休息区面积指标

观众休息厅是比赛和其他活动时供观众休息的场所,也常是观众由观众厅内疏散出来先到达的场所,因此既要考虑一定数量观众在这里休息、如厕、饮水、购物等要求,也要考虑观众由这里到设施外门的疏散,表10提出了国/内一些室内馆的休息厅面积指标。但近年来随着体育产业化的发展,有关商服、娱乐、餐饮设施的增加也会带来观众休息区面积的变化。

表10 我国部分体育馆休息厅面积统计表

wps35体育建筑设计规范JGJ31-2003

2 关于观众厕位指标的考虑

表11是我国一些体育馆厕所的数量统计,从使用情况看,由于观众使用时间集中,因此常产生排队现象,同时由于设施活动的多样性,使女性观众增加,也使女厕的拥挤程度增加。

表11 我国部分体育馆厕所器具数量统计表

wps36体育建筑设计规范JGJ31-2003
体育建筑设计规范JGJ31-2003

北京市建筑设计院20世纪80年代的调查提出男厕按每250人1个大便器3个小便斗,女厕所按每100人1个大便池即可,即每千人观众男厕设3个大便池,9个小便斗,女厕设5个大便池。

在1995年出版的建设设计资料集中提出参考指标见表12。

表12 厕所卫生洁具数量参考量

wps38体育建筑设计规范JGJ31-2003

在《剧场建筑设计规范》JGJ 57—2000中提出:

男厕应按每100座设一个大便器,每40座设一个小便器或0.6m长小便槽,每150座设一个洗手盆。

女厕应按每25座设一个大便器,每150座设一个洗手盆。

男女厕所厕位数比率为1:1。

国外有关的厕所参考指标如下:

德国足协提出千人指标为12,其中男女之比为3:1,大小便器之比为1:4。

澳大利亚悉尼奥运会主会场的厕所指标见表13。

表13 悉尼奥运会主会场厕所指标

wps39体育建筑设计规范JGJ31-2003

本条中观众厕位的指标即参考以上规定,结合当前的使用特点订出。其中男女比例考虑了设施的多功能使用和女性观众实际的增加而定为1:1。

3 运动员用房中所列出的房间系根据比赛时的基本要求设置,运动员休息室需根据队员的多少、比赛队的数目和安排来合理设置。

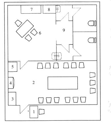
此处附国/际田联建议兴奋剂检查的内容和平面,见图2。

wps40体育建筑设计规范JGJ31-2003

图2 兴奋剂检查室的分布、安装和设备

1-入口处;2-等候室;3-杂志;4-电视机;5-冰箱/饮料;6-兴奋剂检查官员室;7-仪器桌和柜;8-冰箱;9-厕所间

4.4.4 本条规定了作为比赛设施时,在竞赛管理用房方面的基本要求,由于比赛的规模和特点不同,在面积和内容上也会有所差别。

4.4.5 新闻媒介主要指新闻官员和图文记者的工作用房,本条提出了一些基本要求,新闻发布厅、新闻记者的餐饮服务等未列入其中。由于比赛项目和规模的不同,媒体和记录的数量也会有较大差别,需根据具体情况而定。另外,随着计算机技术的发展,网络化、数字化的特点,工作用房和内容还会有所变化和调整。

4.4.6 计时记分用房应根据不同竞赛项目对于计时、记分的不同要求而相应设置。

4.4.7 广播、电视等传媒是体育设施,尤其是比赛设施的重要使用对象,随着传输技术的发展,对于有关的设备和用房的要求也会越来越高,本条列出了主要的用房内容及配置标准。

4.4.8本条指体育设施的技术用房的主要内容与基本面积标准,其中器材库的大小需视体育设施的规模、活动内容、管理方式有所调整。


  因篇幅有限请到资料下载   下载完整文件。

  还可以了解更多关于会议室解决方案、产品和案例 等信息。

  还可以了解更多关于体育场馆解决方案、产品和案例 等信息。

  还可以了解更多关于剧场剧院解决方案、产品和案例 等信息。

  还可以了解更多关于学校教育   解决方案、产品和案例   等信息。