赣州51龙凤茶楼论坛一品楼品楼论坛 ,全国聚凤阁信息论坛万花楼,东莞桑拿0757sn论坛,昆明耍耍网桑拿论坛

卓邦案例分析

您所在的位置: 首页 > 资讯频道 > 技术支持 > 技术文章 > 宝鸡大剧院主剧场建筑声学设计

宝鸡大剧院主剧场建筑声学设计

来源:ZOBO卓邦 发布日期 2023-03-19 浏览:

  为迎接第九届陕西省艺术节,让广大人民群众共享文化惠民成果,同时提升宝鸡市文化软实力和综合竞争力,故兴建宝鸡大剧院。宝鸡大剧院项目选址位于宝鸡市金台区新东岭城市综合体范围内(图1),于2020年10月投入使用。

1宝鸡大剧院主剧场建筑声学设计

图1宝鸡大剧院实景图

  宝鸡大剧院建筑方案深化设计、内装方案及深化设计、建筑声学设计,均由天津大学建筑设计规划研究总院有限公司独立承担。宝鸡大剧院总占地面积约30000m2,主体建筑总面积约40906m2。其中,地上三层建筑面积约25500m2,地下一层建筑面积约15400m2。宝鸡大剧院内设一个约1205座的主剧场和一个500座的多功能剧场,以及合唱排练厅和音乐排练厅等其他配套房间(图2)。本文主要介绍主剧场的建筑声学设计。

2宝鸡大剧院主剧场建筑声学设计

图2宝鸡大剧院大厅实景图

  一、剧场功能及建筑概况

  宝鸡大剧院主剧场主要以演出各类音乐剧、交响乐、地方戏曲等舞台类演出,以及举办大型会议为主。主剧场座位数约1205座,其中池座870座,临时座椅90座,二层楼座225座,包厢20座;有效容积约10309m3,每座容积8.5m3/座。主剧场建筑平面略呈马蹄形,楼座由观众厅后部延伸至两侧,良好的体型为建筑声学提供了较好的声场环境。舞台呈品字形,包含主舞台、侧舞台和后舞台,舞台总面积1768m2,舞台开口为16m×10m;舞台台口线至池座和楼座后墙水平距离为32m;观众厅宽度为29.2m;楼座下开口高深比5.2:7.3=1:1.4≥1:1.5,符合规范要求。池座观众席共22排(图3),前后高差(总起坡)为5.5m,平均起坡为0.26m;楼座观众共7排(图4),前后高差(总起坡)为2.98m,平均起坡为0.5m。舞台设有活动音乐罩,观众席前部设升降乐池。剧场主扬声器设于台口前部天花主扬声器桥内,拉声像扬声器位于台口八字墙区域,所有扬声器均为暗藏式;音控室、灯控室设于池座后墙的中部。图5~图6为观众厅剖面图及实景图。

3宝鸡大剧院主剧场建筑声学设计

图3观众厅池座平面图

4宝鸡大剧院主剧场建筑声学设计

图4观众厅楼座平面图

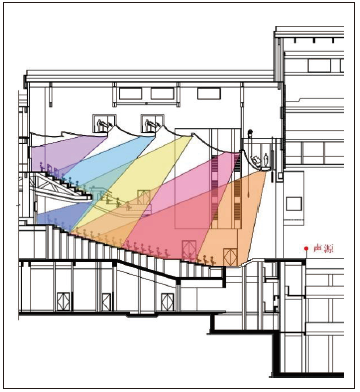
5宝鸡大剧院主剧场建筑声学设计

图5观众厅剖面图

6宝鸡大剧院主剧场建筑声学设计

图6观众厅实景图

  二、主要声学设计指标

  根据主剧场使用功能及规模的不同,同时参考业主方的使用要求,确定观众厅内声学的音质参量指标,并作为声学设计及室内设计必须考虑的原则。此外,根据业主使用需求,主剧场以演出歌舞剧为主,所以,设计指标以不使用舞台音乐罩工况为准。

  根据以上情况,对于宝鸡大剧院主剧场,各项声学设计技术指标如下。

  混响时间RT:要求满场1.5s±0.1s,空场1.7s±0.1s,频率特性见表1。

  声场不均匀度:在自然声源的条件下,大与小声级差值≤6dB?8dB。

  音乐明晰度C80:1dB~3dB。

  语言清晰度D50:≥0.45。

  语言传输指数STI:≥0.45。

6.宝鸡大剧院主剧场建筑声学设计

  三、建筑体型设计

  1、八字墙形状设计

  主剧场观众厅平面整体呈马蹄形,能提供良好的声场效果。主剧场同时承担音乐演出的需求,需要以自然声进行演出,舞台八字墙设计尤为重要。舞台八字墙能为观众席前区提供前次反射声,提高该区域观众的观演效果。图7为调整前的台口八字墙声线分析图,可以看出,图中蓝色区域,即观众厅前中区缺少前次反射声。对八字墙形状进行调整后的声线分析见图8,前次反射声能覆盖观众席中前区,保证观众席区域观众能够获得很好的丰满感。

7宝鸡大剧院主剧场建筑声学设计

图7八字墙调整前声线分析图

8宝鸡大剧院主剧场建筑声学设计

图8八字墙调整后声线分析图

  2、吊顶形式设计

  观众厅剖面设计取决于两个因素。一是规范规定的每座容积,它能确定观众厅吊顶的大概高度;二是观众厅剖面声线分析,它能确定吊顶的形式。结合上述两个因素,确定的吊顶形式如图9、图10所示??梢钥闯觯醵シ瓷涞纳裟芨哺枪壑谙乃星?,其分布均匀,能达到良好的声场效果。

9宝鸡大剧院主剧场建筑声学设计

图9剖面声线分析图(声源位于大幕线后)

10宝鸡大剧院主剧场建筑声学设计

图10剖面声线分析图(声源位于乐池)

  四、观众厅表面装修材料的声学设计

  根据确定的混响时间值,对主剧场观众厅进行声学材料布置,同时遵循室内声学材料布置原则,确定观众厅空间以下部位的材料及构造做法。

  (1)观众厅地坪及走道

  主剧场主体结构采用钢结构,由于工期问题,观众厅楼面基层采用纤维水泥压力板,基层下采用排布紧密的小钢柱起支撑作用,为了尽可能减小人员走动产生的振动噪声,采用两层共48mm厚纤维水泥压力板(单层面密度≥40kg/m2)、两层之间铺设1.2mm厚隔声毡作为楼面基层材料。同时,为了避免刚性连接,在钢柱与地下一层钢筋混凝土楼面之间布置16mm厚减振层。观众厅地坪材料采用“15mm厚实木地板+15mm厚松木毛地板”。为了进一步降低人员走动产生的振动噪声,在观众厅的主要通道(即走道位置)铺设地毯,具体构造为“10mm厚阻燃地毯+20mm厚松木毛地板”。

  (2)观众厅吊顶

  为了保证足够的反射声,以及结合吊顶异形造型的需求,吊顶材质采用GRG,建议厚度不低于30mm,体密度不低于1800kg/m3。

  (3)观众厅侧墙前区

  该区域需要将声音反射到观众席区域,因此,需采用硬质材料,结合内装设计方案,此区域采用与吊顶相同的GRG材料。

  (4)观众厅侧墙中区

  该区域同样需进行反射处理,结合内装设计方案,在此区域布置15mm厚实木板。

  (5)观众厅侧墙后区、观众厅后墙

  观众厅侧墙后区及后墙区域材料需以强吸声为主,避免产生回声,结合混响时间设计,此区域采用木质穿孔板吸声构造,具体做法为“15mm厚穿孔木质板(孔径3mm、孔距16mm)+50mm厚玻璃棉(容重32kg/m3)”。其中,侧墙区域反射、吸声材料布置位置参考图11。

11宝鸡大剧院主剧场建筑声学设计

图11墙体材料布置位置示意(红色代表反射、蓝色代表吸声)

  (6)楼座栏板

  楼座栏板应避免垂直面,做吸声或扩散处理。根据观众厅混响时间控制,以及结合内装装饰效果,在栏板部分做弧形扩散处理,大样示意见图12。

12宝鸡大剧院主剧场建筑声学设计

图12楼座栏板大样示意图

  (7)舞台

  舞台容积27762m3,大约是观众厅的3倍,混响时间要求与观众厅接近。因此,在舞台工艺进行舞台幕布布置的前提下,对舞台进行混响时间设计。一层天桥以下采用12.5mm厚穿孔石膏板,具体构造为“12.5mm厚穿孔石膏板(穿孔率13.1%,大小眼孔,孔径12/8)+50mm厚离心玻璃棉(容重32kg/m3)+350mm厚空腔”。为了防止道具等冲撞破坏墙体,建议5m以下采用容重大于1150kg/m3的中密度埃特板、5m至一层天桥采用12.5mm厚石膏板,两种材料构造相同。一层天桥至二层天桥下采用12.5mm厚石膏板,具体构造为“12.5mm厚石膏板+400mm厚空腔”,进一步降低低频混响时间。吊顶进行无机纤维喷涂,避免声音经此处反射,产生回声。

  五、计算机模拟分析

  混响时间设计完成后,采用Odeon软件对声场环境进行模拟,对方案起到一定的校正作用。观众厅各部位吸声系数见表2,图13为模拟软件中三维模型图,图14~图18为各参数的模拟结果,表3为各测点平均值。

12宝鸡大剧院主剧场建筑声学设计

表2观众厅界面吸声系数表

13宝鸡大剧院主剧场建筑声学设计

图13Odeon软件三维模型图

14宝鸡大剧院主剧场建筑声学设计

图14T30参数模拟结果

15宝鸡大剧院主剧场建筑声学设计

图15SPL参数模拟结果

16宝鸡大剧院主剧场建筑声学设计

图16C80参数模拟结果

17宝鸡大剧院主剧场建筑声学设计

图17D50模拟结果

18宝鸡大剧院主剧场建筑声学设计

图18STI参数模拟结果

18宝鸡大剧院主剧场建筑声学设计

表3各频点模拟参数平均值

  六、测试结果及分析

  根据混响时间测量规范,在观众厅内共布置17个测点,对主剧场进行空场竣工检测,各参数检测结果见表4。

18宝鸡大剧院主剧场建筑声学设计

表4各测点实测参数平均值

  从检测结果可以看出:

  空场中频混响时间平均值为1.67s,同时考虑工程误差,在设计要求范围内;低频为2.04s,不超出规范规定的限值范围;中高频混响时间平直,整个混响时间测试结果较为理想,满足设计要求。

  声压级检测结果表明,17个测点的声压级为77.6dB,声压级为73.95dB,差值为3.65dB,小于6dB,说明厅堂内声压级分布均匀。

  音乐明晰度是评价音乐声是否清晰的参数,所有倍频程测量结果均大于1dB,说明观众能很好地听清音乐声。

  语言清晰度是评价厅堂语言声是否清晰的参数,所有倍频程测量结果均大于0.3,略小于要求的≥0.45,可能是由于空场环境缺少观众吸声造成的。

  语言传输指数同样是评价语言声的参数。参数越大,代表观众听到的语言声越清晰。测点测试结果均值为0.52,表明观众厅内清晰度好。

  作为宝鸡市崭新的文化建筑,宝鸡大剧院是宝鸡市市民共享文化盛宴的重要场所。本次建筑声学设计,通过前期的建筑体型设计、混响时间设计、计算机辅助模拟,及后期声学检测,表明主剧场混响时间设计达到预期、混响时间特性曲线符合规范、声场分布均匀、具有一定的丰满度和清晰度,满足表演剧种的功能使用要求。有理由相信,未来宝鸡大剧院一定能肩负丰富人们精神文化生活的重任,为宝鸡市市民带来美好的视听体验。

  选自《演艺科技》2021年第8期陈航,刘刚《宝鸡大剧院主剧场建筑声学设计》,转载请标注:演艺科技传媒。更多详细内容请参阅《演艺科技》。